Are you looking for an easy way to stay organized in your daily life, work, or school? Printable forms might be just what you need! These handy tools can help you streamline tasks, track important information, and stay on top of your responsibilities.
With printable forms, you can access a wide range of templates that cater to various needs, from daily planners and to-do lists to budget sheets and contact forms. The best part? You can print them out anytime, anywhere, and customize them to suit your preferences.

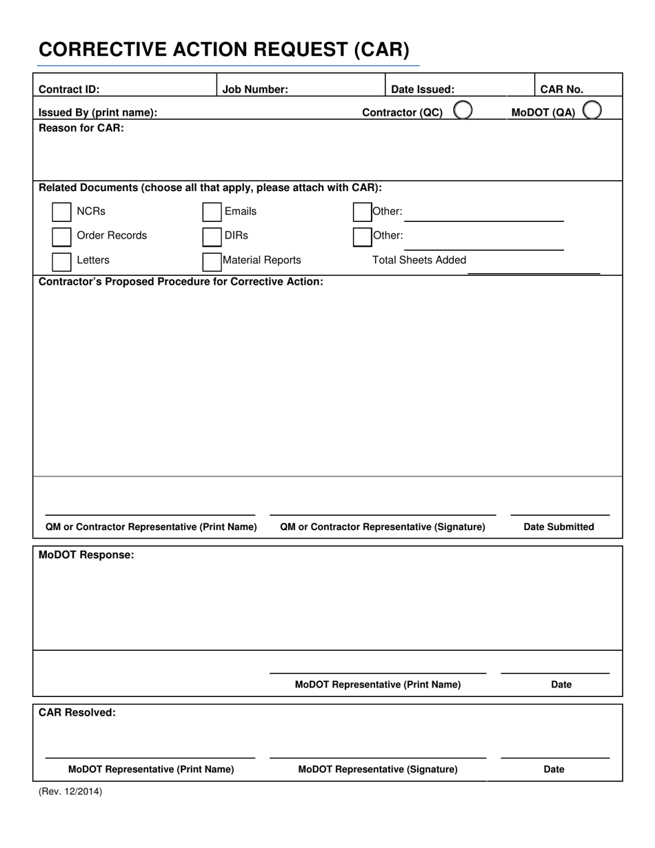
action request form
Stay Organized with Daily Planner Form Printable
Whether you’re juggling multiple projects at work or trying to keep track of your family’s schedule, a daily planner form printable can be a game-changer. Simply print out a fresh sheet each day, jot down your tasks and appointments, and watch your productivity soar!
Free printable application forms make applying for jobs, schools, or programs a breeze. Just fill in the necessary information, print it out, and you’re ready to go. No more messy handwriting or last-minute scrambling to find a pen!
From blank form printables for home or office use to specialized templates for specific tasks, the possibilities are endless. Take advantage of these versatile tools to simplify your life, boost your efficiency, and reduce unnecessary stress.
So why wait? Explore the world of printable forms today and discover how they can revolutionize the way you organize your life. With just a few clicks and a trusty printer, you’ll be well on your way to a more streamlined, productive, and stress-free existence. Happy printing!

Missouri Corrective Action Request Car Fill Out Sign Online And Download PDF Templateroller

5 Action Request Form SSL EDU

Whether you’re a small business owner, form printable has something for everyone.
Thanks to thoughtful structure, it’s easy to stay prepared every day.
Supplier Corrective Action Request Template Fill Out Sign Online DocHub

Personnel Action Request Form United Physician Services

Action Request Form Bruce Fox PDF Online Form
Don’t miss out on new templates from form printable and manage your workflow.
Be it for event management, form printable is your trusted resource. The forms are waiting for you!